Descripción
¡Por Favor Leer Atentamente La DescripciÓN, Info Adicional / Consultas ÚNicamente Por Whatsapp O Llamada!
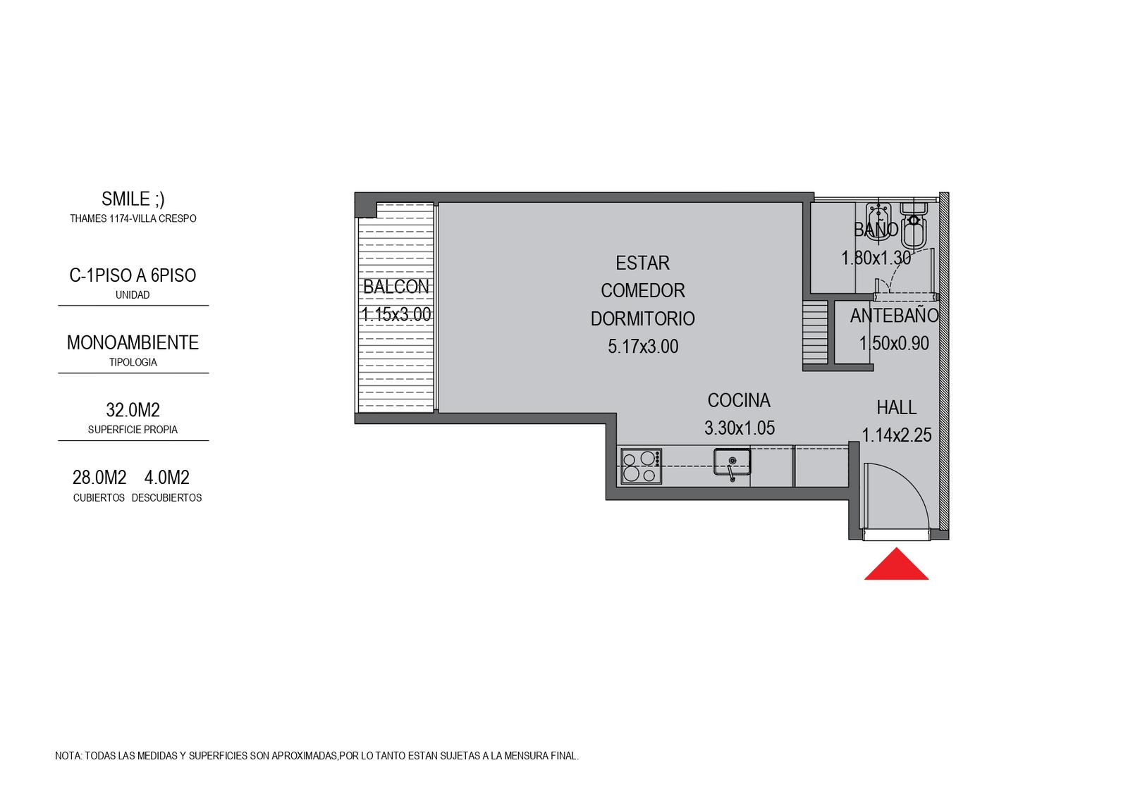
Monoambiente ideal primera vivienda, inversión para renta , oficina , etc
Piso Al Contrafrente unidades disponibles: 4º ( precio de publicacion) y 6º piso ( USD 90.000) 4to piso alquilado hasta SEPTIEMBRE 2026
- Ubicacion : Thames Y Av Cordoba
- Edificio sin amenities ¡ bajas expensas!
Ubicado en el barrio de Palermo al limite del barrio de villa crespo, este monoambiente ofrece una excelente disposición hacia el contrafrente, brindando tranquilidad y privacidad. Con una superficie cubierta de 28m2 y un balcón de 3m2, este departamento es ideal para aquellos que buscan un espacio moderno y luminoso. La cocina cuenta con horno empotrado eléctrico, amoblamientos en melanina blanca y madera touch, mesada de granito gris mara y bacha de acero inoxidable. Además, cuenta con preinstalación para equipos split frío/calor y agua caliente central. El edificio, de bajo mantenimiento, ofrece losas y tabiques en hormigón armado a la vista. Con acceso a diversas líneas de colectivos, esta propiedad es una excelente oportunidad tanto para inversores como para quienes buscan un espacio confortable en una ubicación privilegiada. ¡Contactanos para más información!
* Cocina y horno empotrado electrico


