Descripción
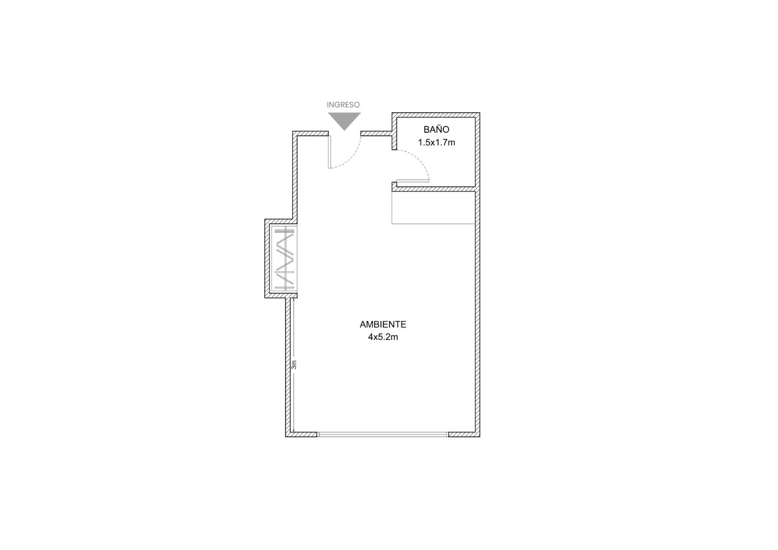
Monoambiente — 28,55 m² — Piso 7 — Contrafrente (luminoso y tranquilo) Departamento tipo estudio/monoambiente con metraje eficiente y terminaciones de primera. Contrafrente: menos ruido, ideal para home office, consultorio o renta corporativa.
Cocina eléctrica integrada con mobiliario completo y anafe eléctrico. Baño completo con mesada tipo mármol Aberturas con DVH (aislamiento térmico/acústico) Placard con interiores y puertas espejadas Pre-Instalacion Aire acondicionado frío/calor
Apto profesional. Edificio y amenitiesEdificio nuevo en funcionamiento, con laundry, seguridad 24 hs, 2 ascensores. Amenities en desarrollo según cronograma: gym, cowork/SUM, piscina, solárium, parrillas y bicicletero. ConectividadAcceso rápido a subtes (Subte Línea A y Subte Línea C), Metrobus y múltiples líneas de colectivo. Próximo a UADE y puntos clave del microcentro.
Todas las operaciones son a cargo del Martillero y Corredor Público Inmobiliario responsable: Gustavo De Simone CUCICBA 8456 / CMCPSI 6661.
La información y medidas provistas son aproximadas y deberán ratificarse con la documentación pertinente y no compromete contractualmente a nuestra Empresa. Los Gastos expresados (expensas, ABLl, etc.) se refieren a la última información recabada y deberán confirmarse. Las fotografías no vinculantes ni contractuales.
En cumplimiento de las leyes vigentes que regulan el corretaje inmobiliario, Ley Nacional 25.028, Ley 22.802 de Lealtad Comercial, Ley 24.240 de Defensa al Consumidor, las normas del Código Civil y Comercial de la Nación y Constitucionales, los Brokers NO ejercen el corretaje inmobiliario. Todas las operaciones inmobiliarias son objeto de intermediación y conclusión por parte del Corredor Público Inmobiliario colegiado, cuyos datos se exhiben en cada publicación de propiedad objeto de comercialización.


